skip to main content
$799,900

1391 Terrace Drive, Mt Lebanon, PA 15228

Contingent #1740958
Mt LebanonMt Lebanon School DistrictAllegheny County
Single Family3 Beds2 Baths2 Half Baths0.19 Acres
Welcome to this charming colonial home with welcoming front porch! Step into the entry featuring hardwood floors, neutral colors, a large living room with stone fireplace and cozy tv room or could be formal dining room. A stunning kitchen with high end appliances, beautiful honed quantize, tiled back splash. An oversized island with an abundance of storage. Wet bar with ice maker. Eat in kitchen area - an entertainer's dream. First floor powder room. Upstairs are 3 generous sized bedrooms with a primary en suite - double sink and tiled shower in the bathroom. 2 walk-in closets, hallway bathroom and 2 storage closets. Basement boasts a finished game room with a fireplace, laundry and storage room with access up to the backyard. Enjoy coffee on the covered porch or a night cap on the deck. 2 car detached garage. Table top, flat yard. NEW roof Conveniently located to South Hills Village, multiple grocery stores, the Galleria, Foster Elementary school - This home is a gem!
Presented ByCosta Real Estate
General Information
Lot Size 0.1928
Public Transportation
Taxes $12,994
Exterior Features
Architecture Colonial
Construction Brick
Parking Detached Garage, 2
Roof Composition
Style 2 Story or 2 Level
Interior Features
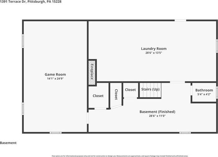
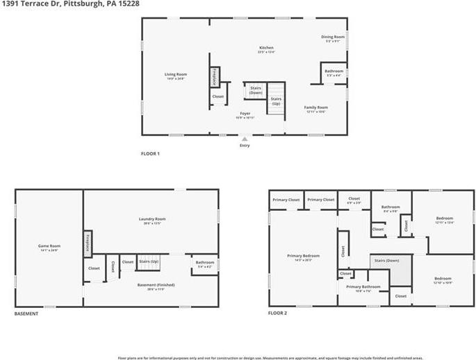
Basement Walk Out, finishe
Fireplaces 2
Floors Hard Wood, Wall to Wall
Room Count 10
Included
Auto Door on Garage
Dishwasher
Disposal
Utilities
Cooling Central, Gas
Heating Gas, Forced Air
Sewage Public
Water Public

Rooms

Upper Level

  • Master Bed20x14

  • Bedroom13x11

  • Bedroom13x13

Main Level

  • Living Room25x14

  • Dining Room9x5

  • Kitchen23x13

  • Entry16x11

  • Family Room13x10

Lower Level

  • Laundry28x13

  • Game Room28x11

Room sizes and locations are based on available info. Bathrooms and additional rooms may not be shown. Contact us for more detail.

Map

Drive Time Estimator

Add locations to calculate your drive time to this property.

Mortgage Estimator

principal + interest
$0
$
price
% down
$
loan
%
years
+
taxes
$1,083
$
taxes/yr
+
insurance
$0
$
ins./yr
=
monthly cost
$0
Total Monthly Cost

For more details, use our mortgage comparison and amortization tool.

This is an estimate which can be affected by your lender's rates, PMI requirements and other factors. For the most accurate information, contact a mortgage representative.

Listing courtesy of HOWARD HANNA REAL ESTATE SERVICES

Information Herein is Deemed Reliable but Not Guaranteed

Make This Your Home!
Presented ByCosta Real Estate

I'd like to:

Email This Property

Fill out the form below to email this property to a friend!

Login
Register
Log In To Use This Feature

Log in to access your saved properties, easily request more information, get customized mortgage calculations and more! Or register a new account.

Register to Use This Feature

Creating an account allows you to save properties, easily request more information, get customized mortgage calculations and more!

Forgot Password

Enter your email address in the box below and click "Reset Password" to send an email with instructions to reset your password.