skip to main content
$339,900

156 Woodland Dr, Pleasant Hills, PA 15236

Active #1719900
Reduced1/16
Pleasant HillsWest Jefferson Hills School DistrictAllegheny County
Single Family3 Beds2 Baths2 Half Baths0.29 Acres
Welcome to this one-of-a-kind Tudor Revival home in Pleasant Hills, filled with timeless character inside and out. This stone beauty features 3 bedrooms, 4 baths, and 2 fireplaces. Step into the entry with custom tile work, leading to hardwood floors, detailed trim, accent walls, and exposed brick and stone. The first floor offers a formal living room, kitchen with black and stainless appliances, formal dining, breakfast nook, and family room. Upstairs are 3 spacious bedrooms, including an owner's suite with en suite bath. The color splash throughout tells a story for each room. The finished lower level includes a game room with built-in coffee/wet bar, laundry room/ storage area, and mechanical room. The lower level is walk out. Outdoor living shines with a 300 sq ft side deck and pergola, perfect for relaxing or entertaining. Ideally located near shops, and dining. WJHSD. Plesse take note of the updated electrical system with new panel and the restored slate roof .
Presented ByCosta Real Estate
General Information
Lot Size 119x100
Public Transportation
Taxes $9,327
Exterior Features
Architecture Tudor
Construction Stone
Parking Integral Garage, 1
Roof Slate
Style 2 Story or 2 Level
Interior Features
Basement Walk Out, Full/FN
Fireplaces 2
Floors Hard Wood, Other, Tile
Room Count 13
Included
Auto Door on Garage
Dishwasher
Gas Stove
Microwave Oven
Refrigerator
Utilities
Cooling Central
Heating Gas, Forced Air
Sewage Public
Water Public

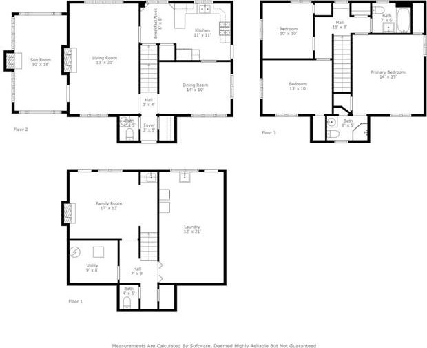
Rooms

Upper Level

  • Master Bed14x15

  • Bedroom13x10

  • Bedroom10x10

Main Level

  • Entry

  • Living Room21x13

  • Dining Room14x10

  • Kitchen11x11

  • Extra Room8x6

  • Family Room18x10

Lower Level

  • Game Room17x13

  • Den

  • Laundry21x12

  • Extra Room9x8

Room sizes and locations are based on available info. Bathrooms and additional rooms may not be shown. Contact us for more detail.

Map

Drive Time Estimator

Add locations to calculate your drive time to this property.

Mortgage Estimator

principal + interest
$0
$
price
% down
$
loan
%
years
+
taxes
$777
$
taxes/yr
+
insurance
$0
$
ins./yr
=
monthly cost
$0
Total Monthly Cost

For more details, use our mortgage comparison and amortization tool.

This is an estimate which can be affected by your lender's rates, PMI requirements and other factors. For the most accurate information, contact a mortgage representative.

Listing courtesy of BERKSHIRE HATHAWAY THE PREFERRED REALTY

Information Herein is Deemed Reliable but Not Guaranteed

Make This Your Home!
Presented ByCosta Real Estate

I'd like to:

Email This Property

Fill out the form below to email this property to a friend!

Login
Register
Log In To Use This Feature

Log in to access your saved properties, easily request more information, get customized mortgage calculations and more! Or register a new account.

Register to Use This Feature

Creating an account allows you to save properties, easily request more information, get customized mortgage calculations and more!

Forgot Password

Enter your email address in the box below and click "Reset Password" to send an email with instructions to reset your password.